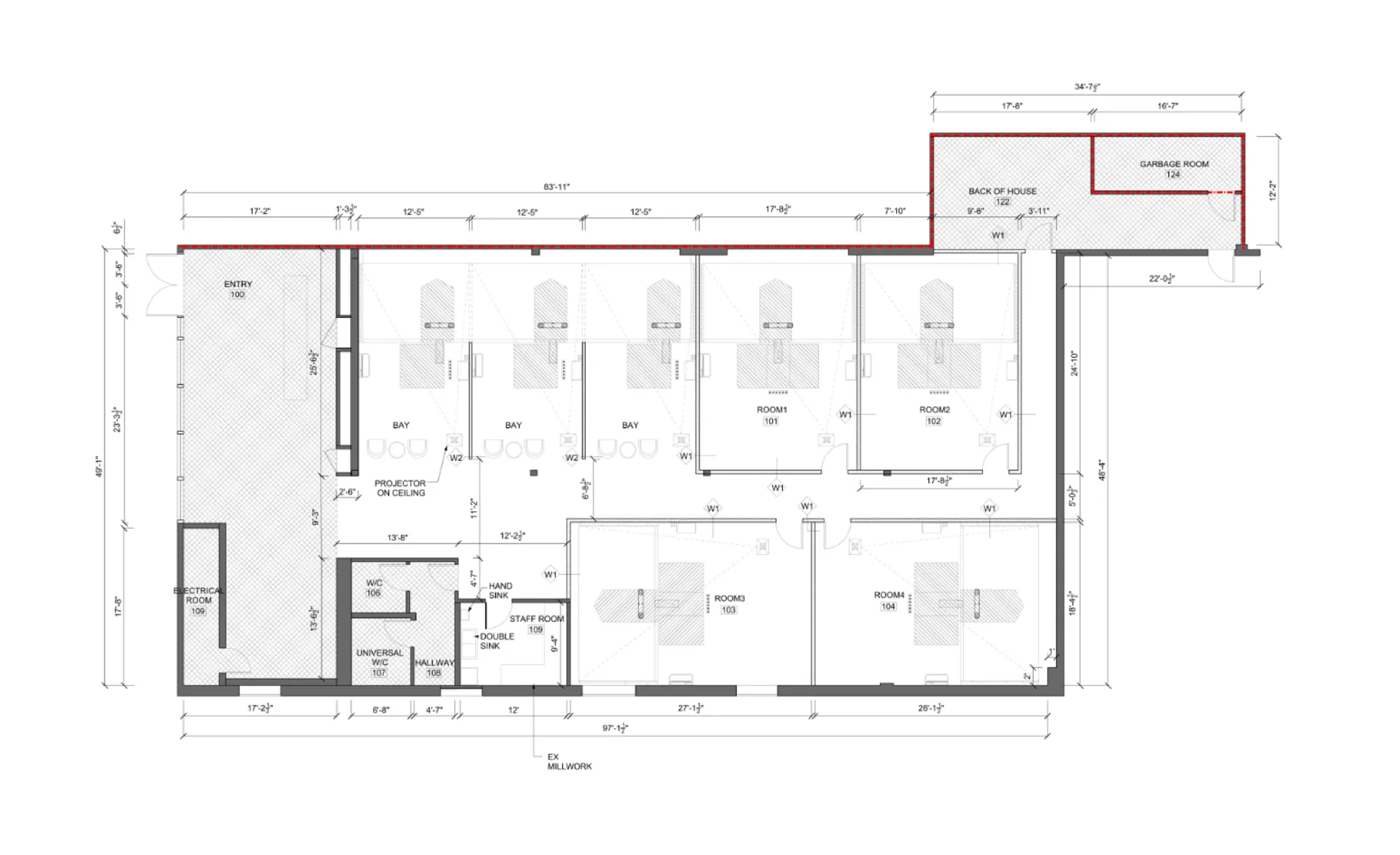
Reliable Contracting delivered a complete tenant improvement for Birdie Indoor Golf at Brentwood, handling everything from demolition and framing to custom finishes and furniture installation. The project required careful coordination between architectural plans, structural requirements, and the client's vision for a premium indoor golf lounge.
Key elements included custom millwork, specialty lighting design to enhance the simulation bays, acoustic treatments, and a lounge area with a curated material palette that balances sports energy with upscale comfort.
Strategy
Full TI Delivery, Phased Construction, Brand-Driven Detailing
Design
Custom Millwork, Simulation Bay Integration, Acoustic Design




